Ascensores Simonelli S.A.
Porque hacemos las cosas bien, la marca es nuestro apellido.
inicio
la empresa
productos
Ascensores electromecánicos
Ascensores hidráulicos
Montavehículos
Escaleras mecánicas
Rampas móviles para estacionamiento
novedades
clientes
distribuidores
mantenimiento
contacto
planos
Ascensores electromecánicos:
Plantas
Ascensores electromecánicos:
Sala de Máquinas, Plantas y Cortes
Ascensores hidráulicos:
Plantas
Ascensores hidráulicos:
Sala de Máquinas y Corte
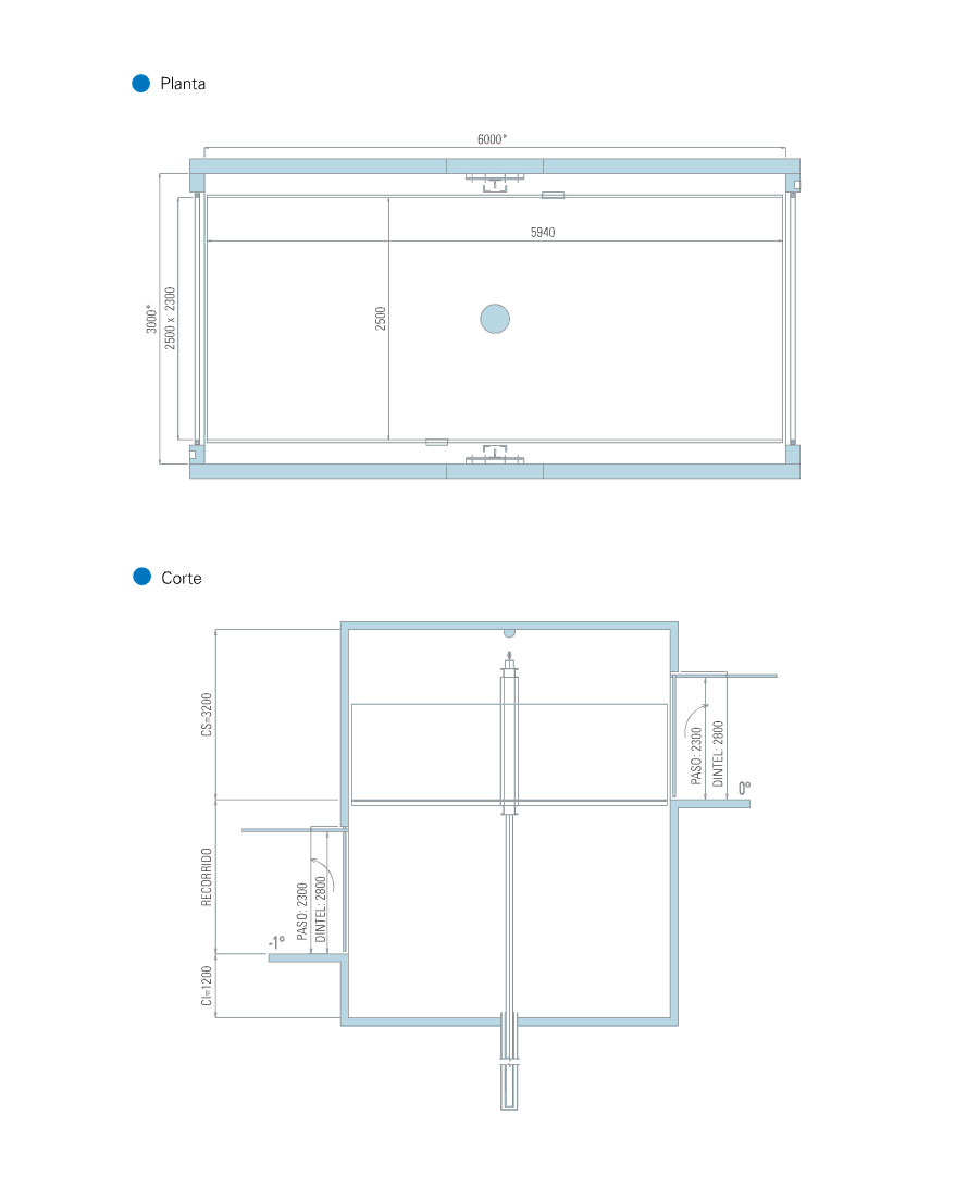
Montavehículos hidráulicos,
pistón central
Montavehículos hidráulicos,
pistones en tándem
Montavehículos hidráulico, pistón central
Descargar pdf